Halcon Tunnel Batch Ovens
THE HALCON TUNNEL BATCH OVEN.
ENGINEERED FOR PRECISION.
BUILT FOR PERFORMANCE.
Prime Heat’s Batch Ovens are meticulously designed to deliver unparalleled precision, efficiency, and versatility for curing a wide range of coatings. Leveraging the power of energy-efficient Halogen Infrared (IR) technology, these ovens offer precise temperature control, intelligent automation, and the flexibility to meet the most demanding production requirements
HALCON TUNNEL
BATCH OVEN
Prime Heat’s HalCon Batch Oven’s are the first and only finishing systems engineered with Halogen Short-Wave & Medium-Wave IR and Electric-Convection heating. This hybrid design delivers instant heat activation, uniform curing, and unmatched precision— something no gas, electric, or catalytic system can achieve— making HalCon the best-performing and most advanced finishing technology available. HalCon is not just an upgrade— it’s a transformation.
Designed to adapt to your specific production needs, these ovens combine advanced engineering with effortless operation and low-maintenance reliability.
- 5X Faster Cure Times – Cuts finishing time from 15-20 minutes to 6,000-hour Lamp Life Expectancy—long-lasting with minimal maintenance—it takes less than a minute to change a lamp.
- Zero Carbon Emissions—environmentally friendly, OSHA & EPA-compliant. under 5 minutes.
- 5X Faster Cure Times – Cuts finishing time from 15-20 minutes to under 5 minutes.
- Instant Heat Activation—Reaches full operating temperature (up to 4,040°F) in ONE second, unlike convection or gas ovens that take 10-20 minutes to preheat.
- Cures Coatings From the Inside Out—Short-Wave IR penetrates the coating and heats from the inside out, ensuring uniform curing and eliminating moisture entrapment and defects.
- Eliminates 99.9% defects
- Converts 95% of Energy into Short-Wave Infrared—unmatched efficiency, making it 50-70% more energy-efficient than gas convection systems.
- Uses 50% Less Power Than Gas Systems—significantly lower operating costs.
- Safe & Sealed—does not require oxygen to operate, reducing factory risks.
- Crystal-clear, flawless finishes
PRODUCT DETAILS
Meet PowerCart, the intelligent conveyor system engineered to revolutionize your finishing line with smart, independent operation and unmatched flexibility. Unlike traditional chain-driven systems that are limited by fixed speeds and bottlenecks, PowerCart moves autonomously, adapting in realtime to your production flow. Each cart operates independently—no chains, no rails, no restrictions—giving you the freedom to optimize efficiency, eliminate bottlenecking,, and achieve precision control over every part of your process. Magnet-controlled positioning ensures carts stop exactly where needed, while instant stop functionality allows workers to pause individual carts without disrupting the entire line.
it’s built for the future
Fully programmable to your workflow, PowerCart integrates seamlessly with robotic systems and HalCon Tunnels, creating a fully automated, connected finishing ecosystem. With 360° rotating tabletops for optimal spray positioning, real-time performance tracking, and on-the-go charging, PowerCart keeps your production running smoothly, safely, and efficiently. Plus, its explosion-proof design (Class 1, Division 1) makes it safe for hazardous environments, while its compact footprint maximizes factory space. This isn’t just a conveyor system—it’s the brain of your finishing line
PRODUCT DETAILS
Prime Heat’s HALCON Batch Ovens are meticulously designed to deliver unparalleled precision, efficiency, and versatility for curing a wide range of coatings. Leveraging the power of energy-efficient Halogen Infrared (IR) technology, these ovens offer precise temperature control, intelligent automation, and the flexibility to meet the most demanding production requirements.
- HALCON TECHNOLOGY — Energy-Efficient Halogen IR Technology: Utilizes advanced halogen bulbs for instant, high-intensity heat with minimal energy consumption.
- 500% Faster Curing Times compared to conventional ovens, optimizing production efficiency.
- 50% Energy Savings with advanced Halogen IR technology.
- Rapid Cool-Down (~1–2 mins): Parts are ready for sanding, stacking, or additional coating almost immediately after curing.
- Modular, Scalable Design: Future-proof your operations with ovens that can be expanded as production demands grow.
- Precision Temperature Control (±2°F): Achieves exceptional thermal stability through integrated IR sensors and digital thermostats, maintaining surface temperature within ±2°F for consistent, flawless curing.
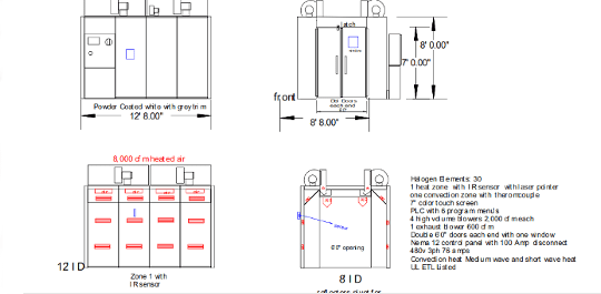
- Advanced Control System: The 7” programmable color touchscreen PLC offers an intuitive interface, enabling operators to select from up to 10 customizable cure schedules tailored to various coating types.
- Custom-Built to Specification: Every oven is engineered to fit your specific production needs, with design parameters—including size, length, and heat zone configuration—optimized based on part dimensions and coating materials.
- Optimized for Efficiency: Designed for easy operation and low-maintenance performance, ensuring maximum uptime and minimal operational disruption.
- Ambient Preconditioning: Begins with ambient air to gently stabilize the part.
- Controlled Warm Air Stage: Gradually increases surface temperature for uniform heat distribution.
- Medium-Wave IR Ramp-Up: Elevates surface temperature rapidly with consistent, even heat.
- Dual-Phase Short-Wave IR Curing: Delivers rapid, deep-penetration curing for superior adhesion and finish quality.
- Solvent-Based Coatings: Surface moisture is vaporized during the pre-cure ramp-up, ensuring proper Flash-Off before initiating high-intensity curing, which mitigates defects like solvent pop.
- Water-Based & Low Temp Substrates: Cure in the IR Heat after Flash-Off, leveraging the coating’s higher thermal tolerance to achieve faster cure times without compromising finish quality.
- High-Sensitivity IR Sensors: Continuously monitor product surface temperatures for real-time feedback and adjustment.
- Advanced Digital Thermostats: Maintain precise thermal regulation within ±2°F, ensuring uniform curing across every part.
- High-Volume Air Systems: Work in tandem with short-wave IR to heat efficiently over the product, creating an optimal thermal environment that reduces cure times without sacrificing quality.
The Prime Heat PowerCart is a fully autonomous, self-propelled, and intelligent material handling system. Unlike traditional systems, PowerCart operates independently on a ¾” high ABS-plastic track, dynamically adjusting speed, stopping, and routing without disrupting workflow.
The Prime Heat PowerCart is a fully autonomous, self-propelled, and intelligent material handling system. Unlike traditional systems, PowerCart operates independently on a ¾” high ABS-plastic track, dynamically adjusting speed, stopping, and routing without disrupting workflow.
The Prime Heat PowerCart is a fully autonomous, self-propelled, and intelligent material handling system. Unlike traditional systems, PowerCart operates independently on a ¾” high ABS-plastic track, dynamically adjusting speed, stopping, and routing without disrupting workflow.
The Prime Heat PowerCart is a fully autonomous, self-propelled, and intelligent material handling system. Unlike traditional systems, PowerCart operates independently on a ¾” high ABS-plastic track, dynamically adjusting speed, stopping, and routing without disrupting workflow.
The Prime Heat PowerCart is a fully autonomous, self-propelled, and intelligent material handling system. Unlike traditional systems, PowerCart operates independently on a ¾” high ABS-plastic track, dynamically adjusting speed, stopping, and routing without disrupting workflow.
The Prime Heat PowerCart is a fully autonomous, self-propelled, and intelligent material handling system. Unlike traditional systems, PowerCart operates independently on a ¾” high ABS-plastic track, dynamically adjusting speed, stopping, and routing without disrupting workflow.
The Prime Heat PowerCart is a fully autonomous, self-propelled, and intelligent material handling system. Unlike traditional systems, PowerCart operates independently on a ¾” high ABS-plastic track, dynamically adjusting speed, stopping, and routing without disrupting workflow.
THE HALCON BATCH OVEN
CUSTOMIZED TO ANY SIZE & SPACE.
Meet the PowerCart. Unlimited product variety & curing compatible with Robotics Intelligence capabilities.
Cut your finishing time from 24 hours to less than 10 minutes.
Your daily throughput just got exponential
THE HALCON BATCH OVEN CUSTOMIZED TO ANY SIZE & SPACE.
THE HALOGEN BATCH OVEN | 9’ PORTABLE
THE HALOGEN BATCH OVEN | 9’ TUNNEL
THE HALOGEN BATCH OVEN | 12’ TUNNEL
THE HALOGEN BATCH OVEN
THE HALOGEN BATCH SAMPLE LAYOUT
